The Roverlc space capsule house features a seismic-resistant steel frame foundation, complemented by aviation-grade aluminum alloy, silicone weatherproof sealant, and vacuum glass for the exterior structure. Inside, it is finished with premium wood-grain lock flooring and a bamboo fiber board ceiling. An integrated intelligent control system throughout the house offers users a modern, smart, and convenient lifestyle.
Space Capsule House Type | V312 | ||||
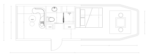
Dimensions | L11.5*W3.3*H3.15( M) | ||||
Exterior equipment | 1、Seismic system steel structure. 2、Aviation aluminum shell system. 3、Heat keeping and insulation and sound insulation Double-layer tempered hollow glass and three laminated hollow tempered glass skylight system. 4、Fire- resistance Foamed polyurethane layer panel(Special patent). | ||||
Interior equipment | 1、Fully-finished house decoration include environmental floor,ceilling and wall,top brand wires,water tube, lamps, sanitary ware,air conditioner,water heater,toilet,shower facilities,smart curtain etc. 2、Smart Control System:Whole-house voice smart control,smart door lock,smart curtain | ||||
Other configuration | Concealed and anti-noise equipment room,water supply and drainage cold protection system,steel structure supports,stationary rings accessories. |
Space Capsule House Type:V312
Dimensions: L11.5*W3.3*H3.15(M)
Number of the guest:2-4persons
Note: The product is constantly upgraded, the picture is for reference only, the final product is subject to delivery
Configuration class | Standard configuration | ||||
Major Structure | Seismic steel structural systerm(Safety Certification:ISO9001),aviation aluminum-alloy +silicone weatherproofing sealant,PC board light box(Customized),100mm foamed polyurethane layer+flame resistance panel(Special patent) | ||||
Door and windoe glass part | LOW-E Insulated tempered glass,sound+heat insolation lock smart lock door,floorboard | ||||
Decoration section | Bamboo fiber board(Environmental Certification),multi-layer solid wood floor(Environmental Certification) | ||||
Bathroom section | Toilet,shower,wash basin,bathroom mirror,shower room partition etc | ||||
Electrical section | Bath heater,water heater,air conditioner,whole-house voice intelligent control,Intelligent projector | ||||
Other Configuration | Integration ER,stationary ring,transport fastener,basic connector,carbon steel supporting stand,fabric curtains | ||||
Notes | Optional(Customized):Electric floor heating,double bed+mattress;Features:Good fire-proof,water-proof and seismic resistance,easy construction,interior space available,customizable interior finish and furnishing |